Hillside Mews, Brighton
Construction of 4 x 4 bed semi detached houses. Completion Summer 2024. Each unit will be worth circa £750,000.
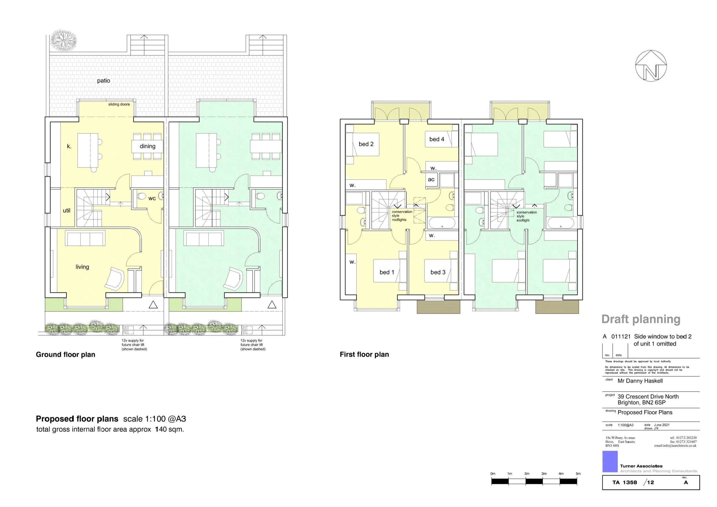
Construction of 4 x 4 bed semi detached houses. Completion Summer 2024. Each unit will be worth circa £750,000.